TELTOW | PARKHAUS LICHTERFELDER ALLEE 45
Teltow, Parkhaus Lichterfelder Allee 45
Neubau eines Parkhauses in Teltow
| Bauherr | Evangelisches Diakonissenhaus Berlin Teltow Lehnin |
| Bruttogeschossfläche | 5.830 qm |
| Stellplätze | 152 |
| Planung | 2020 - 2021 |
| Ausführung | 2022 - 2023 |
| Leistungsphasen HOAI | 1-4, Teilleistungen von 5-7 |
| Planungspartner | GIVT Gesellschaft für Innovative VerkehrsTechnologien mbH |
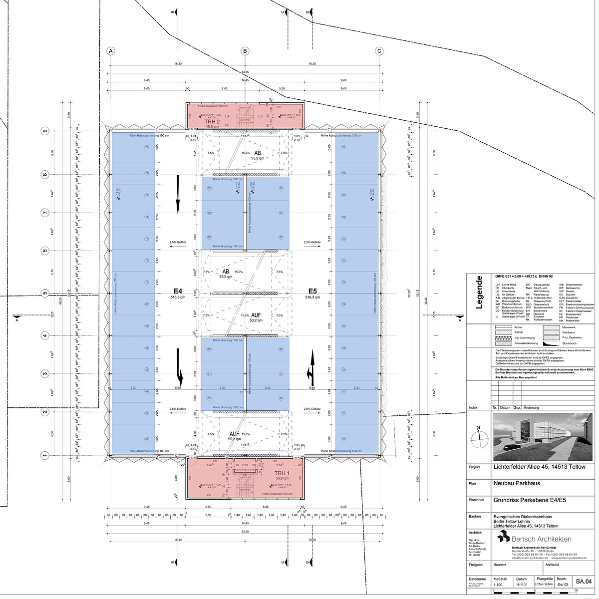
Auf dem Gelände des Diakonissenhauses in Teltow wurde ein Parkhaus mit 152 PKW-Stellplätzen realisiert.
Das Parkhaus ist viergeschossig mit halbversetzten Ebenen konzipiert. Die Geschosse sind von außen ablesbar, um die Maßstäblichkeit des Ortes zu wahren. Die Erschließung der Ebenen erfolgt über zwei Treppenhäuser auf der Nord- und Südseite. Das südliche Treppenhaus ist mit einem Aufzug für die barrierefreie Erschließung ausgestattet.
Das Gebäude ist mit einem umlaufenden Klinkersockel versehen. Das Material nimmt die auf dem Gelände vorherrschende rote Klinkerfarbe auf. Auch die Treppenhäuser sind auf der Außenseite mit Klinkern bzw. Riemchen verkleidet.
Die Parkebenen wurden mit einer Vorhangfassade aus gefalteten Lochblechen umkleidet. Dadurch erhält der vergleichsweise große Baukörper eine leichte, teiltransparente Hülle. Gleichzeitig werden die erforderlichen Lüftungsquerschnitte für das Parkhaus über die Lochbleche bereitgestellt. Die Elemente sind geschossweise durch horizontale Querträger gegliedert.












