CAPUTH | ALTENPFLEGEHEIM SEESTRASSE 1
Caputh, Altenpflegeheim Seestraße 1
Erweiterung und energetische Sanierung eines Altenpflegeheims in Caputh
| Bauherr | Evangelisches Diakonissenhaus Berlin Teltow Lehnin |
| Planung | 2020 - 2021 |
| Bruttogeschossfläche | 4072 qm |
| Leistungsphasen HOAI | 1-2 |
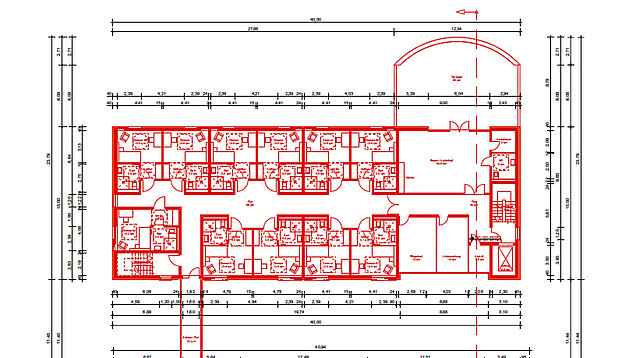
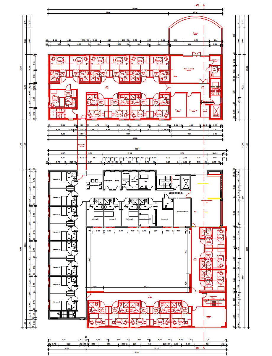
Das vorhandene Gebäude der Altenpflegeeinrichtung in Caputh besteht aus einem zweigeschossigen, L-förmigen Gebäude mit Flachdach. Die Einrichtung umfasst 25 Zimmer für die vollstationäre Pflege. Das Gebäude wurde 1999 nach Plänen von Heinle Wischer & Partner errichtet.
Die geringe Anzahl von Betreuungsplätzen im Bestand ist im Betrieb kaum wirtschaftlich. Aufgrund der attraktiven Lage besteht eine hohe Nachfrage nach Plätzen in der stationären Pflege. Die Anzahl der Wohneinheiten soll daher auf mindestens 70 erhöht werden.
Vorgeschlagen wird die Ergänzung des L-förmigen Baukörpers zu einem O. Dafür wird auf der Süd- und Ostseite ein einhüftiger, zweigeschossiger Ringschluss hergestellt. Der Flur wird an den einseitig offenen Flur des westlichen Flügels und an den vorhandenen Gemeinschaftsraum auf der Ostseite angeschlossen.
Für einen zusätzlichen Ergänzungsbau ist auf dem nördlichen Nachbarflurstück ausreichend Platz. Bei dreigeschossiger Bauweise kann hier ein Baukörper von 40 m Länge und 15 m Tiefe mit zweihüftiger Anordnung der Zimmer errichtet werden. Er bietet Platz für drei Wohngruppen mit je 11 Zimmern und dazugehörigen Gemeinschaftsflächen. Durch die gleiche Gebäudelänge wie das gegenüberliegende Bestandsgebäude wird ein Ensemble gebildet. Um kurze Wege für das Personal zu schaffen und Funktionen des Hauptgebäudes mitzubenutzen, wird eine Verbindung beider Gebäude durch eine Brücke im Obergeschoss vorgeschlagen.
Ein zusätzlich gewünschter Mehrzwecksaal wird auf der Nordseite dieses Baukörpers im EG vorgesehen. Er dient der Gesamtanlage für Veranstaltungen und Versammlungen und ist über den Haupteingang des Neubaus auf kurzem Weg erreichbar. Sein Dach wird im 1. OG als Dachterrasse genutzt.
Die Gestaltung des Ergänzungsbaus soll die klare, moderne Architektur des Bestandsgebäudes aufnehmen, so dass ein harmonisches Gesamtensemble entsteht. Das zweite Obergeschoss wird dabei farblich abgesetzt, um optisch eine Dachzone auszubilden.
Gleichzeitig mit der Erweiterung soll das Bestandsgebäude energetisch saniert und ertüchtigt werden. Der Flachdachaufbau, die Fenster und die Sonnenschutz-Schiebeläden werden erneuert. Das Gebäude wird mit einem dünnschichtigen WDVS versehen, was einen weitgehenden Erhalt der qualitätvollen architektonischen Details ermöglicht. Eine Erneuerung der Heizungsanlage vervollständigt den Umbau zum KfW-Effizienzhaus 70.









