BERLIN-MOABIT | KIRCHSTRASSE 19
Berlin-Moabit, Kirchstraße 19
Dachausbau
| Bauherr | privat |
| Wohnfläche DG | 176 qm |
| Planung | 2013 - 2015 |
| Ausführung | 2016 - 2017 |
| Baukosten netto | 460.000 € |
| Leistungsphasen | HOAI 1-8 |
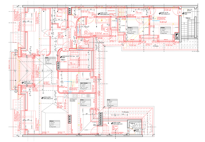
Der vorhandene Dachraum dieses typischen, gründerzeitlichen Berliner Hauses wurde zu einer großzügigen Wohnung ausgebaut. Dabei wurde der vorhandene Dachstuhl weitestgehend erhalten. Nur das Treppenhaus des Vorderhauses musste ins Dachgeschoss verlängert werden.
Im Grundriss wurde eine zusammenhängende Wohn-, Ess- und Küchenzone geschaffen, die über die in den vorhandenen Giebel eingeschnittene Loggia gut belichtet wird. Die Holzkonstruktion dieser Räume wurde erhalten und im Innenraum sichtbar gemacht.




















