BERLIN-NEUKÖLLN | GERMANIAPROMENADE
Berlin-Neukölln, Germaniapromenade, Lauterberger Straße, Ellricher Straße, Friedrichsbrunner Straße
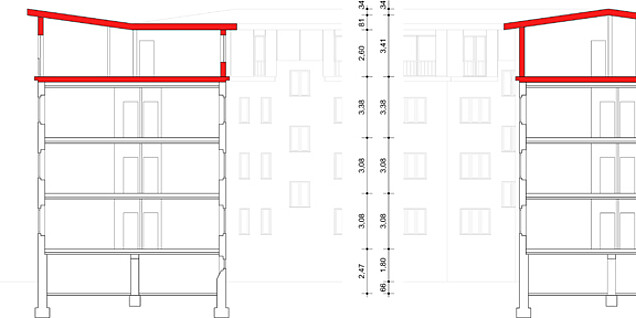
Dachaufstockung eines Wohnblocks
- Schaffung von neuem, preiswertem Wohnraum durch die Nachverdichtung vorhandener Bausubstanz
- Holzkonstruktion in Fertigteilbauweise
- Entwurf, Entwicklung Konstruktionsprinzip, Kostenschätzung
| Wohnfläche | 3.000 qm |
| Baukosten | 5,4 Mio € |
| Entwurf | 2016 |
Die konkrete Aufgabenstellung des Eigentümers, einer Berliner Wohnungsbaugenossenschaft, war die kostensparende Aufstockung aller Häuser des Straßenblocks. Die 25 Bestands-Wohngebäude wurden in den 1930er Jahren in Blockrandbebauung als viergeschossiger Massivbau errichtet. Das neue Dachgeschoss soll unter Weitervermietung der Bestandswohnungen konzipiert werden.
Die Aufstockung wird als zusätzliches Vollgeschoss mit senkrechten Außenwänden über den Bestandsaußenwänden konzipiert. Darüber wird ein flach geneigtes Sattel- bzw. Walmdach mit Dachüberstand aufgebracht. Der vorhandene Dachstuhl muss hierfür abgetragen werden.
Die Struktur des neuen Dachgeschosses orientiert sich im Wesentlichen am Bestand. Loggien werden über vorhandenen Balkonen angeordnet. Die Fassadengliederung folgt einem Rhythmus aus stehenden, bodentiefen Fensterelementen und senkrechter Plattenteilung des Fassadenmaterials in zwei verschiedenen Breiten. Das Dachgeschoss bildet damit insgesamt ein horizontales, farbiges Band über dem bestehenden Putzbaukörper.
Die Erschließung der neuen Wohnungen erfolgt über die vorhandenen Treppenhäuser, die bereits im Bestand bis ins Dachgeschoss geführt sind. Aus Kostengründen wird auch auf den Einbau von Aufzügen verzichtet. Die Wohnungsgrundrisse nehmen Bezug auf die Bestandsgrundrisse. Die Lage von tragenden Wänden und Sanitärsträngen wird übernommen. Die Grundrisse sind kompakt und vielseitig nutzbar – überwiegend werden zeitgemäße Grundrisse mit offenen Küchen am Wohnraum angeboten.
Die Aufstockung soll in Leichtbauweise als Holzkonstruktion errichtet werden. Die Bauweise ist aus Bauelementen mit einem hohen Vorfertigungsgrad vorgesehen. Auf diese Weise kann kosten- und zeitsparend gebaut werden. Die Vorfertigung und dadurch schnelle Montagebauweise wird zudem einen Verzicht auf kostenintensive Gerüstüberdachungen ermöglichen.
Die oberste Bestandsdecke wird nicht angetastet. Sie wird lediglich instandgesetzt, soweit Schäden an der Balkenlage festgestellt werden. Darauf wird eine neue Decke als Brettsperrholz-Deckenplatte aufgebaut, die unabhängig von der Bestandsdecke trägt und durch die Entkopplung optimalen Schallschutz gewährleistet. Die Außenwände werden in Holzständerbauweise aus vorgefertigten, bereits gedämmten Elementen zusammengesetzt. Innenseitig wird eine Vorsatzschale aus GK-Platten angebracht, die als Installationsebene für Leitungsverzüge dient.





















