Bergholz-Rehbrücke, Beethovenstraße
Wohnungsbau
| Bauherr | gewog Kleinmachnow |
| Planung | 2017-2019 |
| Ausführung | 2020 |
| Bruttogeschossfläche | 2.261 qm |
| Kosten 300/ 400 netto | 2.730.000 € |
| Leistungsphasen | HOAI: 1-8 |
In der Beethovenstraße in Bergholz-Rehbrücke wurde im B-Plan-Gebiet ein neues Baufenster zwischen zwei Bestandsgebäuden festgesetzt. Hier ist ein Wohngebäude mit barrierefreien Wohnungen für ältere Menschen und mit preiswerten familiengerechten Wohnungen entstanden. Das vorgegebene Baufenster und die zulässige Höhe wurden vollständig ausgenutzt.
Das Gebäude sollte kostensparend errichtet werden. Daher wurden gestapelte Grundrisse vorgesehen. Diese Schichtung spiegelt sich auch in der Fassade wider, die von horizontalen Bändern geprägt ist. Die gewählte Materialität mit einem Wechsel aus hellem Putz, graubraunen Klinkerflächen und mäandrierenden Gesimsbändern sorgt für eine solide und wertige Erscheinung des Hauses. Die Bauweise ist ein Massivbau mit WDVS-Fassade.
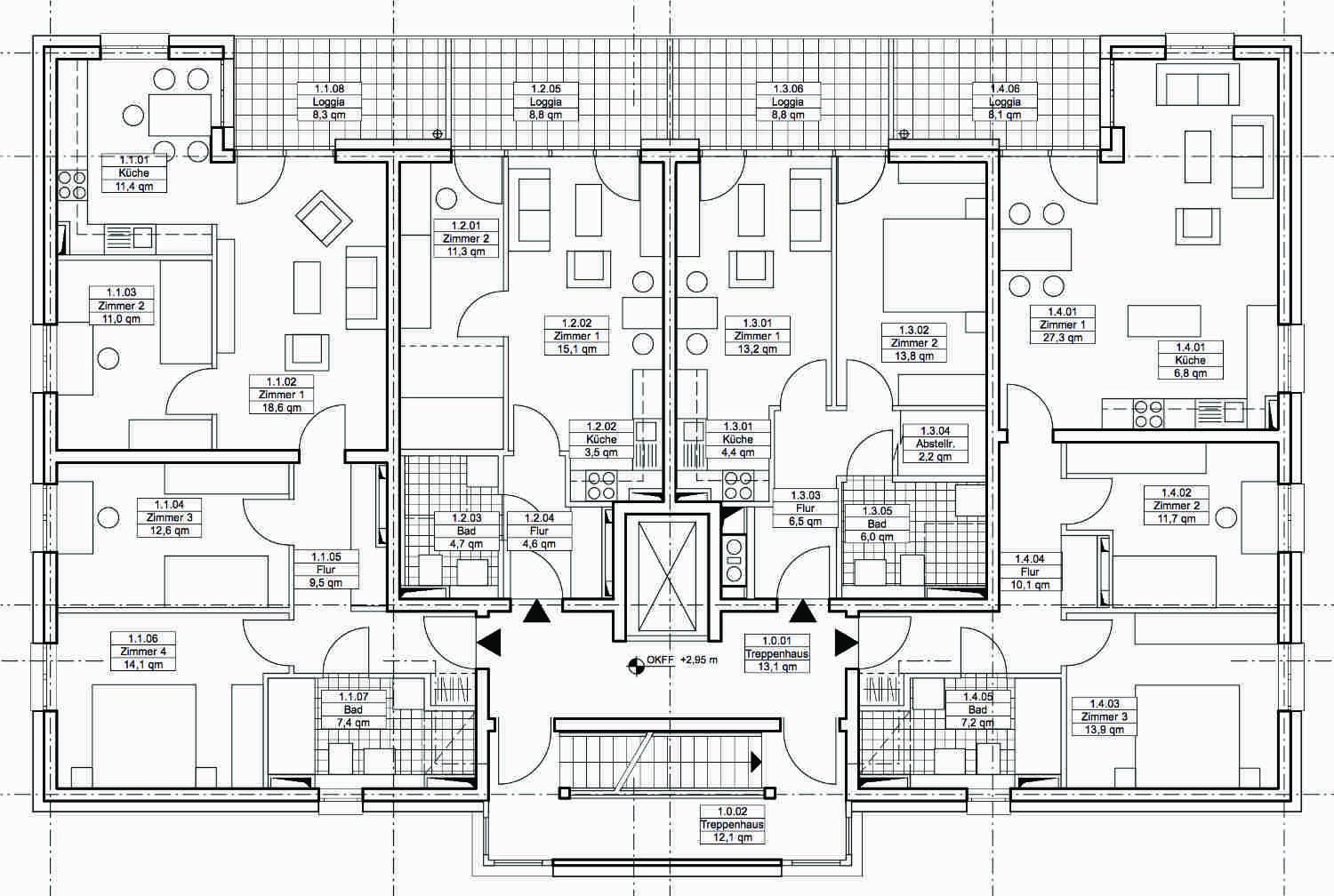
Das Gebäude ist als Vierspänner konzipiert. Es wird ein Wohnungsmix aus kleinen 1,5- und 2-Raum-Wohnungen sowie größeren 3- und 4-Raum-Wohnungen angeboten. Im Erdgeschoss wurden familiengerechte 3- und 4-Raum-Wohnungen mit Gartenzugang hergestellt. Alle Wohnungen haben nach Süden ausgerichtete überdachte Loggien. Die Erschließung erfolgt über ein zentrales Sicherheits-Treppenhaus auf der Nordseite und einen Aufzug.
Aufgrund des hohen Grundwasserstandes war eine Grundwasserabsenkung erforderlich. Der Keller wurde als weiße Wanne hergestellt. Dort sind die haustechnischen Anlagen, Mieterkeller und ein Trockenraum untergebracht.





















