Berlin-Reinickendorf, Montanstraße 18-26, 13407 Berlin
Neubau einer Logistikhalle
| Bauherr | Barings Real Estate GmbH |
| Planung | 2020 |
| Bruttogeschoßfläche | 15.260 qm |
| Leistungsphasen | 1 - Machbarkeitsstudie |
Für die Entwicklung eines Grundstücks in einem Industriegebiet in Berlin-Reinickendorf wurde eine Machbarkeitsstudie erarbeitet.
Ziel der Untersuchung war die maximale Ausnutzung des Grundstücks mit einer Neubebauung als Lager- und Logistikhalle mit größtmöglichem Büroflächenanteil. Die Halle sollte flexibel teilbar und vermietbar sein.
Die maximale Größe des Gebäudes wird hier nicht durch die maximal zulässige GRZ bestimmt, sondern durch die maximal zulässige versiegelte Fläche und den mindestens erforderlichen Grünflächenanteil von 20%.
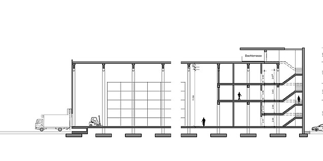
Die LKW-Anlieferzone wird auf die Rückseite verlegt, da dort bereits Rangierflächen für eine dahinter liegende Halle vorhanden sind. So können die vorhandenen versiegelten Flächen optimal genutzt werden. Der Hallenboden wird entsprechend angehoben.
Das Gebäude ist durch ein übliches Stützenraster von 12 x 12 m gegliedert.
Straßenseitig werden die Haupt- und Nebentreppenhäuser für die Bürogeschosse angeordnet. Hier liegen auch die Aufzüge und Rampen für die barrierefreie Erschließung sowie die gemeinschaftlich genutzten Sanitärkerne. Die Treppenhäuser sind vor die Fassade gestellt, um die gerasterte Tragstruktur nicht zu stören. Sie gliedern die Fassade und schaffen so ein markantes äußeres Erscheinungsbild.
Die erforderlichen Grünflächen werden straßenbegleitend vor dem Gebäude angeordnet. Hier liegen auch die PKW-Stellplätze für Mitarbeiter und Besucher sowie die Feuerwehrzufahrt.









