Berlin-Charlottenburg, Sybelstraße 14/ Lewishamstraße/ Waitzstraße
Neubau eines Hotels mit 88 Zimmern
| Bauherr | Berlinhaus/ Prajs Vermögensverwaltung |
| Planung | 2020 - 2022 |
| Ausführung | 2022 - 2023 |
| Bruttogeschossfläche | 3.500 qm |
| Leistungsphasen | 1-5, künstlerische Oberleitung |
In der Berliner City West in unmittelbarer Nähe zum Kurfürstendamm ist ein Hotelneubau geplant.
Der schräge Grundstückszuschnitt resultiert aus dem städtebaulichen Straßenumbau der Nachkriegszeit, durch den die historische Blockstruktur diagonal zerschnitten wurde.
Der Baukörper heilt diesen schrägen Schnitt, indem er die Flucht der angrenzenden Altbauten ein Stück fortführt und in vorspringenden Erkern enden lässt, bevor die Fassade mit ihren geschmeidigen Rundungen auf die schräge Straßenflucht einschwingt. Kleine Balkone markieren zusätzlich den Übergang.
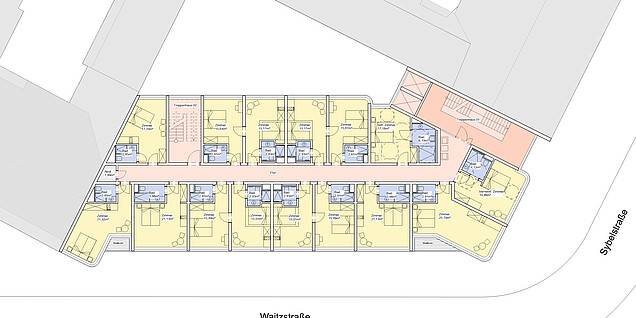
Im zurückgestaffelten Dachgeschoss werden repräsentative Penthouse-Apartments angeboten. In den Normalgeschossen gibt es Hotelzimmer unterschiedlicher Größe und unterschiedlichen Zuschnitts. Alle Apartments sind mit Pantry-/ Kitchenette-Küchen ausgestattet.
Die Hotelkonzeption bietet keine Vollausstattung, sondern geht von einem reinen Online-Buchungsbetrieb und automatisierter Schlüsselverwaltung aus. Damit können platzintensive Lobby- und Rezeptionsflächen entfallen. Im Erdgeschoss wird lediglich eine Restaurantfläche für einen externen Betreiber angeboten.
Die Fassade muss hohe Anforderungen an Schallschutz und Sonnenschutz erfüllen und zugleich einen repräsentativen Charakter aufweisen. Die Bilder stellen verschiedene Materialvarianten (Metall, Klinker, Tonziegel) dar.











